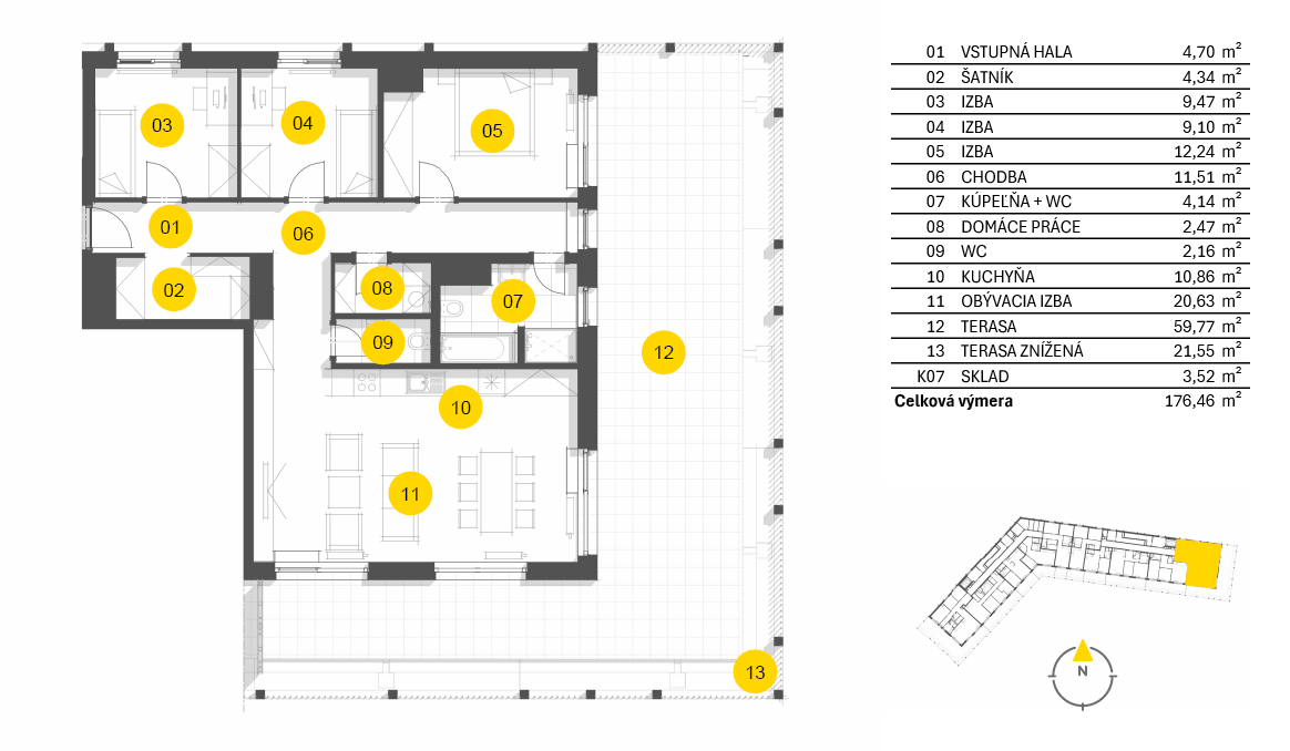
Miranda A C1.7.10

Budova: Miranda A

Poschodie: 6

Počet izieb: 4+kk

Výmera interiéru: 95,14 m² (vrátane skladu)

Výmera exteriéru: 81,32 m²

Celková výmera: 176,46 m²

Stav: Predrezervovaný

Pôdorys bytu

Chcete vedieť viac? Napíšte nám!

Chcete sa dozvedieť viac o projekte Nový Ružinov alebo si dohodnúť osobnú obhliadku?
Vyplňte formulár a my sa vám ozveme čo najskôr.